当前位置:首 页 > 供需中心 > B部--作业;运输

找项目 找人才 找成果 找专利 找融资

一种能够自动升降的潜水搅拌机
添加时间:2023-11-24 浏览次数: 123

专利号:2019101937796

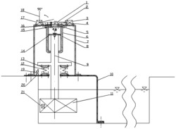
本发明提供了一种能够自动升降的潜水搅拌机,包括升降装置、定转数潜水搅拌机、位移传感器、功率监测仪、计时器以及控制器,所述升降装置用于调整定转数潜水搅拌机的位置,所述控制器根据位移传感器检测的潜水搅拌机的位置、计时器记录的潜水搅拌机在上位移点工作的时长、潜水搅拌机的输出功率通过升降装置调节潜水搅拌机的位置。本发明可实现根据搅拌池污水密度进行自动调节潜水搅拌器的工作位置,并加强了搅拌范围、效率、效果。

友情链接
FRIENDSHIP LINK
惠企知识产权研究院    
联系电话:0631-5166712 联系地址:山东省威海市环翠区城阳路36号606室 联系邮箱:kjcgzhcjh@163.com
版权所有:威海市科技成果转化促进会 鲁ICP备2023019057号-1